Kezdje itt az ingatlan keresést!

Budapest II. kerület, Remetekertváros

Eladó Telek

II. kerület - Remetekertváros, 761 m²-es, telek

BEFEKTETÉSI LEHETŐSÉG A II. KERÜLETBEN - ÉPÍTÉSI ENGEDÉLLYEL!!

Budapest II. kerületének egyik legkedveltebb részén, Remetekertvárosban eladó egy 761 m²-es építési telek, engedélyezett társasház-projekttel együtt!
Főbb paraméterek:
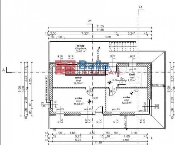
Telek mérete: 761 m²

Érvényes építési engedély: 420 m²-es, kétlakásos, több szintes társasházra

Beépíthetőség: 15% föld felett, 25% föld alatt

Lokáció és közlekedés:
Több buszjárat (57, 157, 157A, 257, 956 éjszakai) elérhető 5 perc sétával

Hűvösvölgy villamos-végállomás: busszal 5 perc, gyalog 15 perc
Széll Kálmán tér villamossal kb. 30 perc alatt elérhető

Infrastruktúra és szolgáltatások:
Oktatás: nemzetközi iskolák a közelben (Gustave Eiffel Francia Iskola, SEK Budapest Nemzetközi Iskola)

Bevásárlás: Lidl, Tesco Express, Spar, kisebb üzletek a közelben

Szabadidő: Hűvösvölgy és a Budai-hegység kirándulási és sportolási lehetőségekkel

Rugalmas megtekintés, akár hétvégén és ünnepnapokon is.

Ideális választás fejlesztőknek és befektetőknek, akik prémium lokációban keresnek engedéllyel rendelkező projektet.

Elhelyezkedés: 1028, Budapest, II. kerület (Remetekertváros II/A.), Remetekertváros

Környezet: Kertvárosi környezet

Közlekedés: Kiváló közlekedés


  • Telekterület 761 m²

Hasonló ingatlanok

Ingatlan hírek

Kiemelt projektek

Ahol találkozhat velünk